Quadrilocale in vendita

Lignano Sabbiadoro, Via Tarvisio
€ 440.000
4 locali 4 locali
112 Mq 112 Mq
2 bagni 2 bagni

Quadrilocale in vendita

Lignano Sabbiadoro, Via Tarvisio

Descrizione annuncio

Lignano Sabbiadoro, conosciuta per la movida e i numerosi posti barca, si divide in tre principali zone: Sabbiadoro, Pineta e Riviera.

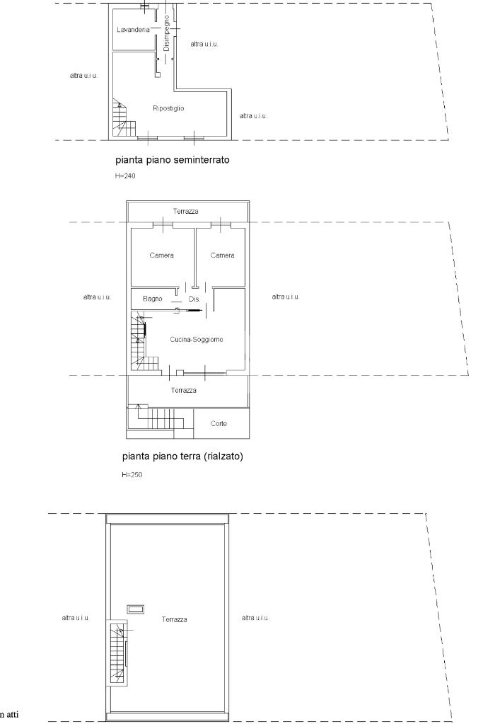
Nella zona residenziale di Pineta, troviamo un residence composto da sei unità abitative di cui, tra esse, vi è una oggetto di vendita.

Dopo aver oltrepassato il cancello e percorso un tratto del marciapiede di ingresso del residence, ci troviamo nel primo terrazzino e, di fronte, al portoncino d’ingresso dell’immobile, dal quale si accede al locale pranzo soggiorno composto da cucina, con piano cottura a induzione, lavabo, pensili da cucina e, a completare, il divano letto ed il tavolo per sei persone.

Dal locale pranzo soggiorno accediamo alla zona notte, caratterizzata da due camere da letto matrimoniali arredate con armadi, comodini e mobile tv. Entrambe hanno accesso al terrazzo, il quale si estende lungo tutto il lato dell’immobile.

Dal disimpegno della zona notte, sulla sinistra, troviamo il bagno, finestrato e completo di tutti i servizi, compreso box doccia.

Dalla zona giorno passiamo alla terrazza all’ultimo piano tramite la scala interna, dove abbiamo la doccia, un lavabo, il locale caldaia, un pannello solare ed un salottino da esterno e si ha, inoltre, la possibilità di installare una piscina.

Al piano semi interrato troviamo il ripostiglio, con buona altezza per essere sfruttata a dovere per le famiglie numerose.

Tutti i livelli dispongono di condizionatore con pompa di calore.

Il residence ha circa 10 anni e l’immobile è stato parzialmente ristrutturato circa 6 anni fa.

Gli infissi sono in pvc e doppio vetro camera, con ante scorrevoli in zona giorno e a ribalta nella zona notte.

La proprietà si completa con un garage al piano terra/semi interrato di circa 15 mq.

Riscaldamento autonomo tramite radiatori alimentati tramite una caldaia funzionante a gas metano.

L’immobile si trova a pochi passi dal parco Hemingway, polmone verde di Lignano e luogo che ospita eventi stagionali, e a circa 15 minuti di passeggiata dal mare.

Mostra tutto

Nelle vicinanze

Trasporto pubblico Trasporto pubblico
Trasporto pubblico
190 m
Rosa dei Venti
Rosa dei Venti
850 m
Ricariche auto elettriche Ricariche auto elettriche
Lignano Sabbiadoro Palazzetto dello Sport | Duferco
780 m
Lignano Sabbiadoro Piazza Rosa dei Venti | Duferco
920 m
Ristorante Pizzeria La Granseola
1,3 Km
Lignano Sabbiadoro Corso delle Nazioni | Duferco
2,0 Km
Luna Blu Parking
2,5 Km
Scuole Scuole
ITST "P. Savorgnan di Brazzà"
1,1 Km
Scuola Secondaria di Primo Grado "G. Carducci"
1,6 Km
Farmacia Farmacia
Azienda Speciale Farmacia
960 m
Farmacia Lignano
970 m
Farmacia De Roia
2,3 Km
Farmacia
2,3 Km
Ospedali Ospedali
Punto di Primo Intervento Lignano
1,1 Km
Pronto Soccorso e Guardia Medica Turistica
1,1 Km
Supermercati Supermercati
A&O
400 m
Supermercati
410 m
LIDL
730 m
CRAI
750 m
Eurospar Upim
910 m
Negozi Negozi
Panificio Bäckerei
500 m
Negozi
800 m
PasseParTout idea moda
1,1 Km
Panificio pasticceria Gobatto
1,6 Km
Abbigliamento
1,9 Km
Bar Bar
Bar Patty
440 m
La Pomme
470 m
Bar Giardino da Renata
730 m
Frecce Tricolori
900 m
ex Mirò
1,0 Km
Ristoranti Ristoranti
La Botte
530 m
Alisei
540 m
Bar - Self Service
640 m
Ginevra
820 m
Ristorante Pizzeria La Sacca
850 m
Mostra tutto

Caratteristiche

Rif.:
61133981
Piano:
1 di 3 (Piano basso)
Box:
1
Posti auto:
1
Balconi:
1
Terrazzi:
2
Mostra tutto
Prezzo Prezzo
€ 440.000
Rata mutuo Rata mutuo
€ 2.090 / mese
Spese annue Spese annue
€ 500
Proponi il tuo prezzoProponi il tuo prezzo
Immobile valutato con T·Valuta

Classe Energetica

B
B
B
B
B
B
B
B
B
EP globale non rinnovabile:
104.64 kW h/m² anno
EP globale rinnovabile:
65.02 kW h/m² anno
EP invernale del fabbricato:
EP estiva del fabbricato:
Anno di costruzione:
2016
Riscaldamento:
Autonomo
Tipo impianto:
A radiatori
Tipo alimentazione:
Metano

Ti interessa visionare l'immobile?

Fissa un appuntamento  Fissa un appuntamento

Richiedi informazioni

Clicca su Leggi per aprire l'informativa
* Questi campi sono obbligatori

Calcola il tuo mutuo

Semplice e senza impegno
Anticipo

( % )
Mutuo

( % )

pochi semplici passi

inserisci i tuoi dati
Questionario completato
Grazie per aver richiesto un appuntamento senza impegno con un nostro Consulente del Credito e Assicurativo.

Hai inserito correttamente tutti i dati necessari e a breve riceverai una e-mail con un link da convalidare per inviare i tuoi dati.
Affiliato
Antares Srl
Viale Gorizia, 35 33054 Lignano Sabbiadoro (UD)

Il nostro staff


  • Giovanni Caria
    Affiliato

  • Filippo Comisso
    Collaboratore

  • Giuseppe Piccolo
    Collaboratore
Viale Gorizia, 35 33054 Lignano Sabbiadoro (UD)
Zona: Lignano Sabbiadoro
Mostra su mappa
Orari: Da Martedì a Sabato dalle 09:00 alle 13:00 e dalle 14:30 alle 18:30. Domenica e Lunedì su appuntamento.
Affiliato
Antares Srl
Viale Gorizia, 35 33054 Lignano Sabbiadoro (UD)

2026 Tecnocasa Franchising S.p.A. - P. IVA 08365160152 - Via Monte Bianco 60/A 20089 Rozzano (MI). Ogni agenzia ha un proprio titolare ed è autonoma. Privacy policy | Policy utilizzo | Cookie policy