Trilocale in vendita

Lignano Sabbiadoro, Via Miramare
€ 550.000
3 locali 3 locali
85 Mq 85 Mq
1 bagno 1 bagno

Trilocale in vendita

Lignano Sabbiadoro, Via Miramare

Descrizione annuncio

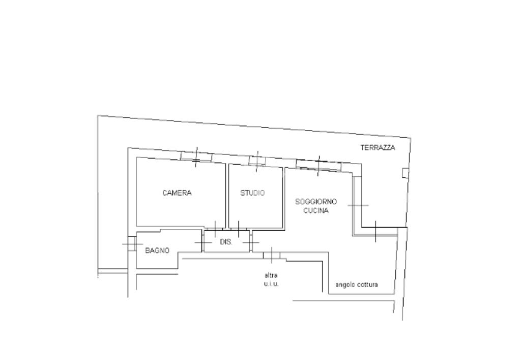
In contesto condominiale di recente costruzione, a cento metri dall’ufficio spiaggia 10 di Sabbiadoro, troviamo un appartamento al piano quarto di sette, oggetto di vendita.

Il condominio, di recente realizzazione, è dotato di ascensore, dal piano terra al settimo ed è adatto anche alle esigenze di persone con problemi di deambulazione.

Arrivati al piano quarto mediante l’ascensore o il vano scale, accediamo all’unità immobiliare oggetto di vendita mediante un portoncino blindato, trovandoci nella zona giorno, finemente arredata e illuminata.

Il locale soggiorno, caratterizzato da vetrate scorrevoli a taglio termico, dispone di un moderno divano, tavolino e mobile tv ed è direttamente collegato con la sala da pranzo, creando un unico ambiente open-space.

La cucina lineare, in tonalità grigio scuro – antracite, è dotato di piano cottura a induzione, lavabo, frigorifero con freezer, forno e lavastoviglie.

Dalla sala da pranzo, accediamo direttamente all’ampio terrazzo che costeggia l’appartamento nel lato Est, trovandoci, prima, in un portico riparato ove è presente una seconda zona, dotata di tavolo e sedie, ove poter pranzare all’aria aperta, rilassarsi o inserire una comoda vasca idromassaggio.

Sulla sinistra dell’ingresso, vediamo la porta del disimpegno della zona notte e, oltrepassandola, troviamo, subito sulla destra, la prima camera da letto, attualmente dotata di due letti ed armadio, direttamente collegata con il terrazzo grazie ad una porta finestra.

Continuando, sempre sulla destra, troviamo la camera da letto padronale, attualmente dotata di letto matrimoniale, comodini e armadio a sei ante, mentre, frontalmente rispetto alla porta del disimpegno, è presente il bagno, completo di lavabo, tazza bidet, ampio box doccia e scalda-salviette/radiatore verticale.

L’appartamento è dotato di riscaldamento autonomo a pavimento, alimentato da caldaia a metano.

Tutte le luci presenti sono a LED, mentre, gli infissi sono tutti in pvc a taglio termico con tendina oscurante interna ad azionamento elettronico per quanto riguarda le camere da letto.

Nel terrazzo è presente l’adduzione idrica e scarico, con possibilità di inserire un lavabo, una fontanella o una doccetta da esterno.

Al piano terra è presente un posto auto coperto di proprietà, accessibile dall’area parcheggio condominiale, chiusa con cancello elettronico scorrevole.

Mostra tutto

Nelle vicinanze

Trasporto pubblico Trasporto pubblico
Darsena Vecchia Via Latisana
Darsena Vecchia Via Latisana
950 m
Hotel Marin - Ufficio Spiaggia 3
Hotel Marin - Ufficio Spiaggia 3
1,1 Km
Trasporto pubblico
1,4 Km
Ricariche auto elettriche Ricariche auto elettriche
Luna Blu Parking
590 m
Scuole Scuole
Scuole
780 m
Scuola Secondaria di Primo Grado "G. Carducci"
1,2 Km
ITST "P. Savorgnan di Brazzà"
1,4 Km
Farmacia Farmacia
Farmacia De Roia
260 m
Farmacia Lignano
1,0 Km
Ospedali Ospedali
Pronto Soccorso e Guardia Medica Turistica
1,4 Km
Punto di Primo Intervento Lignano
1,5 Km
Supermercati Supermercati
Mare+
250 m
Eurospar
300 m
CRAI
710 m
Cristallo
810 m
Ridolfo Alimentari
850 m
Negozi Negozi
Panificio pasticceria Gobatto
30 m
Black Mama
280 m
Area 34
600 m
Abbigliamento
680 m
Negozi
710 m
Bar Bar
Bar Smeraldo
200 m
DRAGO CLUB Discoteca
300 m
Bar Aurora
410 m
Portofino
550 m
Bar
550 m
Ristoranti Ristoranti
Da Salvatore
140 m
Ke pizza
230 m
LidoCity
400 m
Ristorante Rosa
490 m
Pizzeria Al Parco
510 m
Mostra tutto

Caratteristiche

Rif.:
61145703
Piano:
4 di 7 con ascensore (Piano medio)
Posti auto:
1
Terrazzi:
1
Camere da letto:
2
Arredamento:
Completo
Mostra tutto
Prezzo Prezzo
€ 550.000
Rata mutuo Rata mutuo
€ 2.613 / mese
Proponi il tuo prezzoProponi il tuo prezzo

Classe Energetica

A4
A4
A4
A4
A4
A4
A4
A4
A4
EP globale non rinnovabile:
33.14 kW h/m² anno
EP globale rinnovabile:
50.39 kW h/m² anno
EP invernale del fabbricato:
EP estiva del fabbricato:
Anno di costruzione:
2021
Riscaldamento:
Autonomo
Tipo impianto:
A pavimento
Tipo alimentazione:
Metano

Ti interessa visionare l'immobile?

Fissa un appuntamento  Fissa un appuntamento

Richiedi informazioni

Clicca su Leggi per aprire l'informativa
* Questi campi sono obbligatori

Calcola il tuo mutuo

Semplice e senza impegno
Anticipo

( % )
Mutuo

( % )

pochi semplici passi

inserisci i tuoi dati
Questionario completato
Grazie per aver richiesto un appuntamento senza impegno con un nostro Consulente del Credito e Assicurativo.

Hai inserito correttamente tutti i dati necessari e a breve riceverai una e-mail con un link da convalidare per inviare i tuoi dati.
Affiliato
Antares Srl
Viale Gorizia, 35 33054 Lignano Sabbiadoro (UD)

Il nostro staff


  • Giovanni Caria
    Affiliato

  • Filippo Comisso
    Collaboratore

  • Giuseppe Piccolo
    Collaboratore
Viale Gorizia, 35 33054 Lignano Sabbiadoro (UD)
Zona: Lignano Sabbiadoro
Mostra su mappa
Orari: Da Martedì a Sabato dalle 09:00 alle 13:00 e dalle 14:30 alle 18:30. Domenica e Lunedì su appuntamento.
Affiliato
Antares Srl
Viale Gorizia, 35 33054 Lignano Sabbiadoro (UD)

2026 Tecnocasa Franchising S.p.A. - P. IVA 08365160152 - Via Monte Bianco 60/A 20089 Rozzano (MI). Ogni agenzia ha un proprio titolare ed è autonoma. Privacy policy | Policy utilizzo | Cookie policy